Lotes de 350 m²

2,7,11,13,19,20,23,24,30,39,42,49,49 E 56

O projeto de arquitetura referente aos lotes de 350 m² do Loteamento Urbano Palmela Valley está atualmente na fase de licenciamento, com todas as especialidades devidamente organizadas e desenhadas segundo os regulamentos em vigor.

Lotes de 350 m²

2,7,11,13,19,20,23,24,30,39,42,49,49 E 56

O projeto de arquitetura referente aos lotes de 350 m² do Loteamento Urbano Palmela Valley está atualmente na fase de licenciamento, com todas as especialidades devidamente organizadas e desenhadas segundo os regulamentos em vigor.

Dados Técnicos por Lote

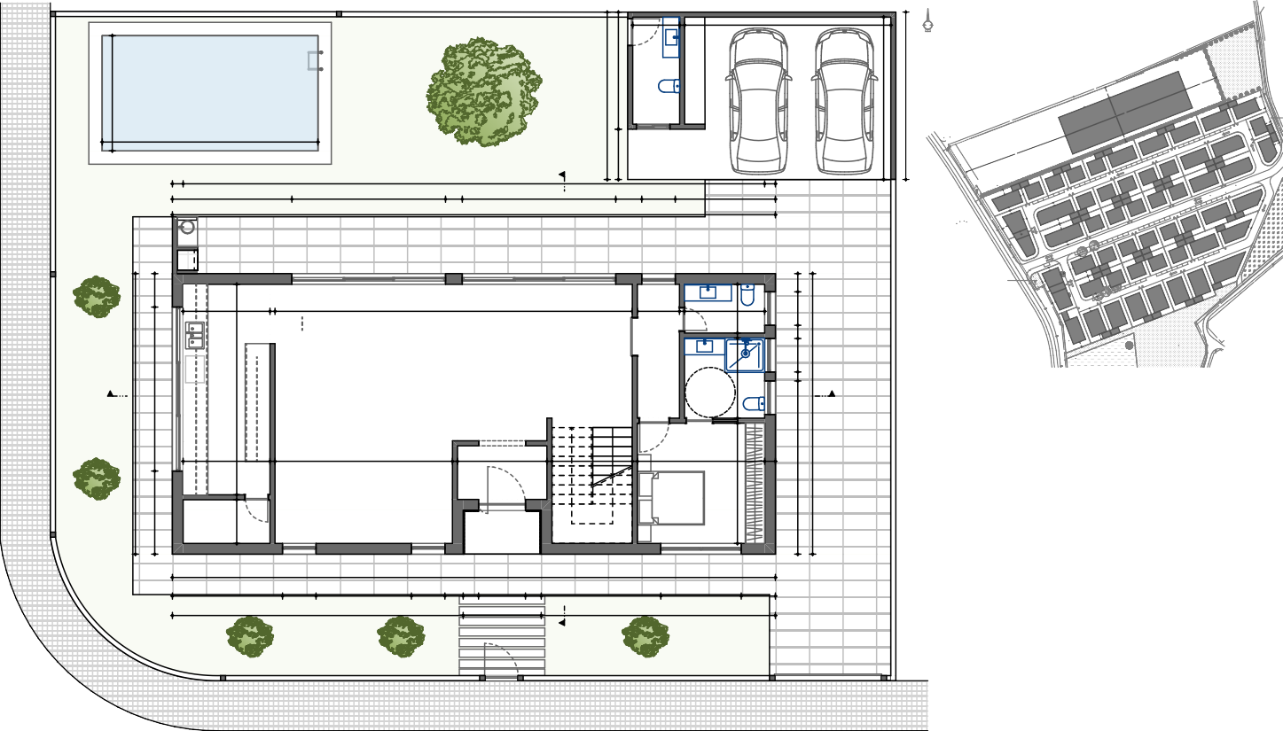
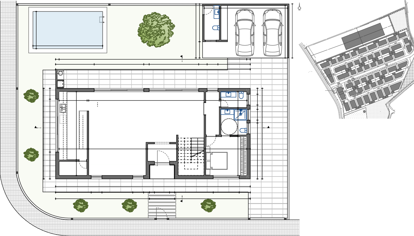
Cada moradia dos lotes de 350 m² segue uma tipologia unifamiliar com uma organização urbana moderna. A área bruta de construção ronda os 149,46 m², com uma área de implantação de cerca de 151,09 m². As casas têm dois pisos acima da cota de soleira e uma cércea média de 6,62 metros. A área coberta varia entre 145,00 m² e 179,10 m², sendo o restante área descoberta. Incluem ainda arrumos de 3,38 m² e hall com 4,28 m². A cota de soleira é 0.00, o piso térreo situa-se a -0.02 m, e a altura máxima depende da planta individual. Todas as medidas devem ser confirmadas em obra e complementadas com os restantes elementos do projeto.

Dados Técnicos por Lote

Cada moradia dos lotes de 350 m² segue uma tipologia unifamiliar com uma organização urbana moderna. A área bruta de construção ronda os 149,46 m², com uma área de implantação de cerca de 151,09 m². As casas têm dois pisos acima da cota de soleira e uma cércea média de 6,62 metros. A área coberta varia entre 145,00 m² e 179,10 m², sendo o restante área descoberta. Incluem ainda arrumos de 3,38 m² e hall com 4,28 m². A cota de soleira é 0.00, o piso térreo situa-se a -0.02 m, e a altura máxima depende da planta individual. Todas as medidas devem ser confirmadas em obra e complementadas com os restantes elementos do projeto.

Dados Técnicos por Lote

Cada moradia dos lotes de 350 m² segue uma tipologia unifamiliar com uma organização urbana moderna. A área bruta de construção ronda os 149,46 m², com uma área de implantação de cerca de 151,09 m². As casas têm dois pisos acima da cota de soleira e uma cércea média de 6,62 metros. A área coberta varia entre 145,00 m² e 179,10 m², sendo o restante área descoberta. Incluem ainda arrumos de 3,38 m² e hall com 4,28 m². A cota de soleira é 0.00, o piso térreo situa-se a -0.02 m, e a altura máxima depende da planta individual. Todas as medidas devem ser confirmadas em obra e complementadas com os restantes elementos do projeto.

Localização e Envolvente

Os lotes estão inseridos numa malha urbana planeada com vias de acesso definidas, como a Rua 5 de Outubro, com acessibilidade, segurança e proximidade a zonas de lazer e serviços. Cada lote está desenhado com recuos e alinhamentos harmoniosos, respeitando a envolvente urbana e promovendo qualidade de vida.

Localização e Envolvente

Os lotes estão inseridos numa malha urbana planeada com vias de acesso definidas, como a Rua 5 de Outubro, com acessibilidade, segurança e proximidade a zonas de lazer e serviços. Cada lote está desenhado com recuos e alinhamentos harmoniosos, respeitando a envolvente urbana e promovendo qualidade de vida.

Lotes Incluídos

O projeto de arquitetura referente à Planta de Implantação dos lotes 2, 7, 11, 13, 19, 20, 23, 24, 30, 39, 42, 49 e 56 do Loteamento Urbano Palmela Valley encontra-se na fase de Licenciamento, com data de elaboração em Março de 2025. Cada um destes lotes possui uma área média aproximada de 350 m² e está destinado à construção de moradias unifamiliares. O projeto foi submetido pela empresa HENREST LDA e desenvolvido sob a responsabilidade do técnico inscrito na Ordem dos Arquitetos com o número OA 19793, obedecendo a todos os parâmetros urbanísticos e regulamentares aplicáveis.

Lotes Incluídos

O projeto de arquitetura referente à Planta de Implantação dos lotes 2, 7, 11, 13, 19, 20, 23, 24, 30, 39, 42, 49 e 56 do Loteamento Urbano Palmela Valley encontra-se na fase de Licenciamento, com data de elaboração em Março de 2025. Cada um destes lotes possui uma área média aproximada de 350 m² e está destinado à construção de moradias unifamiliares. O projeto foi submetido pela empresa HENREST LDA e desenvolvido sob a responsabilidade do técnico inscrito na Ordem dos Arquitetos com o número OA 19793, obedecendo a todos os parâmetros urbanísticos e regulamentares aplicáveis.

Lotes Incluídos

O projeto de arquitetura referente à Planta de Implantação dos lotes 2, 7, 11, 13, 19, 20, 23, 24, 30, 39, 42, 49 e 56 do Loteamento Urbano Palmela Valley encontra-se na fase de Licenciamento, com data de elaboração em Março de 2025. Cada um destes lotes possui uma área média aproximada de 350 m² e está destinado à construção de moradias unifamiliares. O projeto foi submetido pela empresa HENREST LDA e desenvolvido sob a responsabilidade do técnico inscrito na Ordem dos Arquitetos com o número OA 19793, obedecendo a todos os parâmetros urbanísticos e regulamentares aplicáveis.

Plantas

Veja aqui as plantas dos lotes de 350 m² com detalhes sobre áreas, acessos e organização do espaço.

Plantas

Veja aqui as plantas dos lotes de 350 m² com detalhes sobre áreas, acessos e organização do espaço.

Agende Sua Visita ao Palmela Valley

Entre em contato e descubra o que é viver no coração da natureza, com luxo e exclusividade.

Compare anúncios

Comparar